NOMADIC CORRIDORS

Los angeles, california

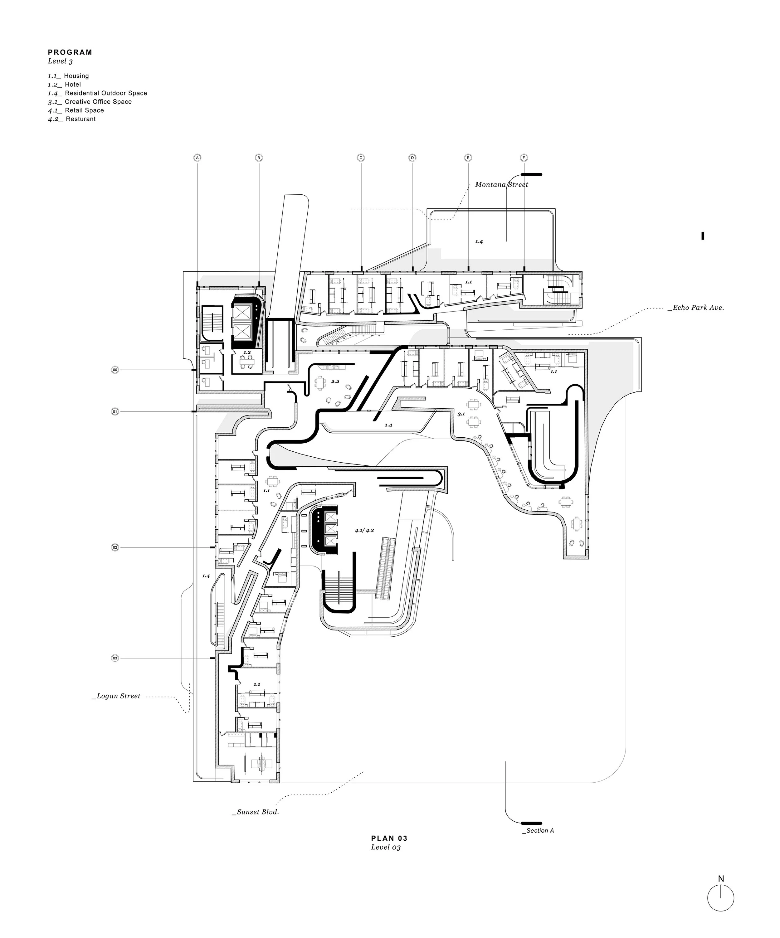
Nomadic corridors proposes a new approach to density in housing in los angeles. one that through the architectural language of the corridor, questions the occupation of the interstitial, and as a result creates a loose interior urbanism of varying thresholds.

los angeles is full of interstitial spaces, defined by their temporality and informality.

Reflecting the ideas of transience, the project rejects the double-loaded corridor. rather than the programless leftover space, the corridor becomes an occupiable continuum, denying ideas of permanence or forever states, a fluid condition of place.

informed by its direct context of echo park, the project pulls from varying paths of movement through the site, the loose itineraries of various users. once overlayed and thickened these vectors begin to shape the project, creating new spaces as they intersect, intertwine, and run parallel.

Programmatically the project takes a silty approach, the program floating or embedded within this larger thickened condition, organized into smaller sequences of rooms. Here they create moments of tension as they run parallel and new programmatic hybrids as they collide. moving through these inextricable territories of rooms, incidental communication is favored over planned moments, where diversion, incidents, and accidents are promoted rather than denied.

From the exterior gfrc panels of various textures and colors work to either reinforce or push back against the interior organization. At detail, the wall thickness, through its porosity and material begins to further articulate the ideas of defining what is private, what is public, what is loose, and what is defined.

As a result, the project not only creates a new collective whole but also through its thresholds and informal temporary spaces, calls into question the traditional status of place in the urban context.

awards_

Ac Martin Design award 2021 - best overall design

PRESENTATION/ visualization/ drawings

Competition posters/ visualization/ drawings

competition posters/ visualization/ drawings

Next
Next

Infrastructures of Dust